You must be logged in to post a review.
Sale!
OSB WRAP
Original price was: $50,000.00.$35,000.00Current price is: $35,000.00.
Description
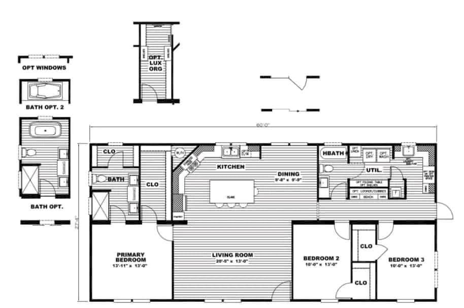
3 Bed 2 Bath. Size 28×64
Used Model that has been renovated with amazing features
Stainless Appliances
E-Built Low Energy Package
Glamour Bathroom
No Wait, Available Now!
Down payment $2,900
Financing available
Message us directly if you are interested in this house
































Reviews
There are no reviews yet.